Sie sind hier: Startseite » Wohnbaugrundstücke für den Neubau von „Mehrfamilienhäusern“
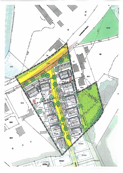
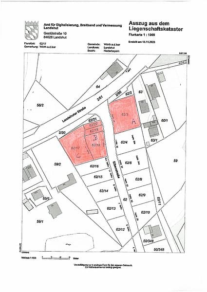
Die Gemeinde Wörth a. d. Isar beabsichtigt den Verkauf der Parzellen
A, FlStNr. 62/3, Gem. Wörth/Isar, Eibenstraße 38 (1.085 m²),
(maximal 5 Wohneinheiten pro Wohngebäude zulässig)
B, FlStNr. 62/18, 62/19 und 62/20, Gem. Wörth/Isar, Eibenstraße 13 (818 m²),
(maximal 4 Wohneinheiten pro Wohngebäude zulässig)
C, FlStNr. 62/17, Gem. Wörth/Isar, Eibenstraße 15 (973 m²)
(maximal 6 Wohneinheiten pro Wohngebäude zulässig)
des Bebauungs- und Grünordnungsplans Schlosspark-Schwaige Nord-Ost.
Bewerbungsfrist
Die formlose Bewerbung ist ab sofort bis spätestens 21.07.2025 schriftlich bei der Gemeinde einzureichen und muss folgende Punkte enthalten:
1) Art der Bebauung / Maß der baulichen Nutzung
Mit der Bewerbung hat der Interessent darzustellen, welche Art der Bebauung und welches Maß der baulichen Nutzung er realisieren will. Die Grundstücke sind bebaubar mit „Mehrfamilienhäusern“ und / oder kleineren WEG-Anlagen. Aus der Bewerbung soll sich, unterlegt durch Planskizzen, das beabsichtigte Bauprojekt mit detaillierten Aussagen zur Nachhaltigkeit und Offenlegung der energetischen Konzepte ergeben.
2) Referenzobjekte
Der Bewerber hat von ihm realisierte Referenzobjekte zu benennen. Soweit Referenzobjekte nicht existieren, ist dies anzugeben.
3) Fertigstellungsfrist/Bauzwang
Es wird darauf hingewiesen, dass in einem notariellen Kaufvertrag eine Vereinbarung enthalten sein wird, dass das beabsichtigte Bauvorhaben innerhalb einer Frist von 5 Jahren fertig gestellt werden muss (Fertigstellungsfrist gilt ab Unterzeichnung des notariellen Vertrages).
4) Rechtsanspruch auf Vergabe
Die Bewerber werden eingehend darauf hingewiesen, dass die Gemeinde in eigener Verantwortung nach Prüfung und Sichtung aller Angebote entscheidet, ob ein Angebot angenommen wird. Die Bewerber haben keinen Rechtsanspruch auf Abschluss eines Kaufvertrages mit der Gemeinde unter keinem denkbaren rechtlichen Gesichtspunkt.
5) Kaufpreis
Interessenten haben ihr verbindliches Kaufpreisangebot entsprechend den bereits aufgeführten Bedingungen abzugeben. Von der Gemeinde Wörth a. d. Isar wird ein Mindestkaufpreisangebot in Höhe von 450,- €/m² festgesetzt.
Copyright 2026 © Alle Rechte vorbehalten.
VG
Postau
Weng
Wörth a.d. Isar
Dann kontaktieren Sie uns einfach jederzeit unter folgenden Kontaktmöglichkeiten:
Sie sehen gerade einen Platzhalterinhalt von Vimeo. Um auf den eigentlichen Inhalt zuzugreifen, klicken Sie auf die Schaltfläche unten. Bitte beachten Sie, dass dabei Daten an Drittanbieter weitergegeben werden.
Mehr InformationenSie sehen gerade einen Platzhalterinhalt von YouTube. Um auf den eigentlichen Inhalt zuzugreifen, klicken Sie auf die Schaltfläche unten. Bitte beachten Sie, dass dabei Daten an Drittanbieter weitergegeben werden.
Mehr Informationen